Orchard Homes Hingham Image 3 10Dec2025

Hardingham Road | Hingham

Orchard Homes Hingham Image 1 10Dec2025

Hardingham Road | Hingham

Orchard Homes Hingham Image 4 10Dec2025

Hardingham Road | Hingham

Surrounded by open fields and nestled in a peaceful corner of Hingham, this exclusive four-bedroom home offers exceptional space, privacy and timeless design.

This thoughtfully designed detached property sits on a large plot, surrounded by far-reaching uninterrupted rural views. Built in a traditional Norfolk style, the house blends soft red brick with clay tiles and heritage detailing to create a timeless exterior. With a large wraparound orientation and uninterrupted countryside views, this is a home that combines traditional charm with the practicalities of modern family living.

Inside, the home offers four spacious bedrooms, each with their own ensuite bathroom. The beautifully proportioned principal suite features a generous dressing room, dual-aspect windows with views across the countryside and a beautifully appointed ensuite with walk-in shower and his and hers sinks.

The ground floor centres around an open-plan kitchen, dining and living area filled with natural light and views out to the rear garden. A separate lounge with fireplace provides a cosy and comfortable retreat, while a study at the front of the house offers the perfect spot for home working.

A utility and boot room lead conveniently off the double garage and external door to the driveway, ideal for busy family life. Every detail has been considered to combine comfort, function and quality in a truly tranquil setting.

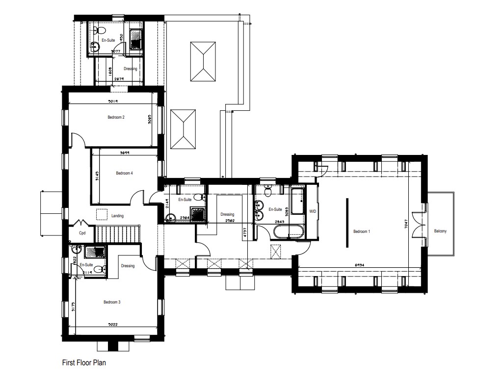
Floorplan

This well-designed L-shaped home maximises its spectacular rural setting. The ground floor includes a spacious double garage with internal access to the study, utility and boot room, along with a cosy lounge featuring a fireplace. At the heart of the home is a striking open-plan kitchen, dining and living space with uninterrupted countryside views. Upstairs, all four bedrooms benefit from ensuites, while the principal suite boasts a private balcony and dressing room.

Double garage

4 Bedrooms

Bespoke-designed kitchen

Panoramic Views

Open-planned Kitchen

Separate utility room

Master suite with separate dressing room

Built in wardrobes to bedrooms

Study

Boot room

Large garden

Amazing location

Location

Just a short walk from the historic market square, Hingham offers the perfect balance of rural life and everyday convenience. The village is home to a range of local amenities including the Coop supermarket, a well-regarded primary school, bakery, doctor’s surgery and the much loved White Hart Hotel which is a well renowned pub restaurant. For the golfing enthusiasts, Barnham Broom Golf Club is only 6 miles away.

Hingham is exceptionally well connected with quick access to the A11. Wymondham (6 miles), Attleborough (7 miles) and Norwich (16 miles) are all within easy reach by road, offering further amenities, schooling and shopping. Rail links can also be found nearby; Attleborough station provides direct trains to Norwich and Cambridge.

Build progress

Follow along with the progress of this development with high-quality photo updates released regularly.

Gallery

Aerial View

Other homes for sale

No other homes are for sale in this development

Share this home: